我校拟在怡园现两幢二层专家楼位置建设A、B两幢十六层高层教工住宅楼,C幢建设地点位于怡园入口处单车棚位置,十八层高。
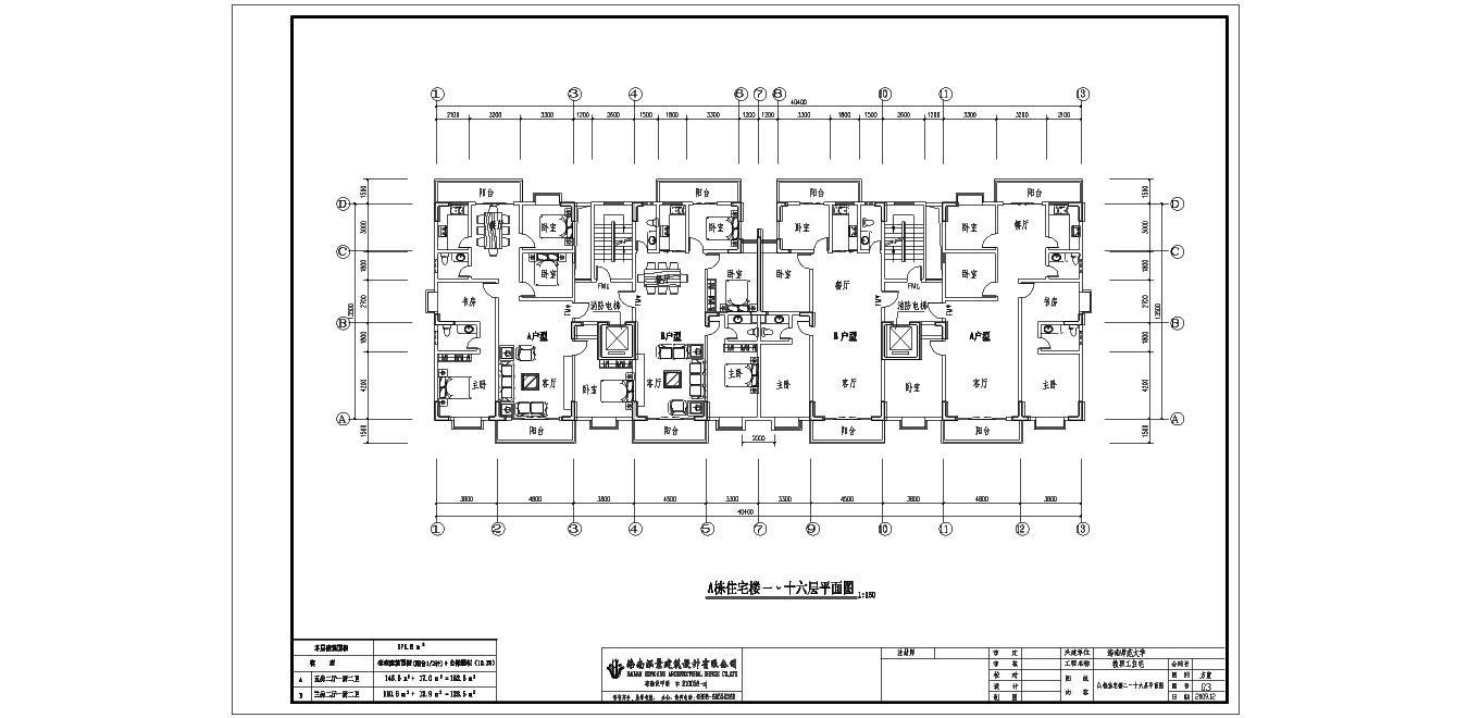
A幢每层A、B户型各两套,A户型32套,B户型32套,共计64套房。A户型建筑面积162.5�O(含公摊面积),B户型建筑面积123.5�O(含公摊面积),楼房地下及两幢楼之间绿地下均修建地下人防工程(可作停车场)。
B幢每层C、D、E户型各两套,各户型32套共计96套房,C户型建筑面积172.3�O(含公摊面积),D户型建筑面积147.8�O(含公摊面积),E户型建筑面积122.9�O(含公摊面积)。
C幢每层A、B户型各两套,A型36套,B型36套,共计72套房,A户型建筑面积162.5�O(含公摊面积),B户型建筑面积123.5�O(含公摊面积),地下及南侧水池位置修建地下人防工程(可做停车场)。
合作建房项目:位于附小北侧,与祥和公司合作兴建,位于校内土地三至二十八层为住宅楼,每层A、B型各两套共计104套,A户型套内建筑面积171.39�O(含公摊面积),B户型套内建筑面积121.56�O(含公摊面积);合作土地上二十一层至二十三层为校方住宅楼,每层四套十二套C型房,C户型套内建筑面积108.05�O(含公摊面积)。
由于项目建设用地受到地形制约,建筑高度受建筑物间距影响,各幢楼房户型面积调小无法增加房间套数。经设计单位多次调整完善各幢楼房设计方案,现提供各幢楼房户型设计方案,请各位教职工认真审核各套房户型(另有异议请咨询基建办、后勤管理处),便于组织确定方案报规划部门审批。
注: 公摊面积均不含地下室的发电机组和消防储水池等面积,最终准确户型面积应以政府相关部门测绘为准。
二�一�年五月二十四日



